Room Floorplans

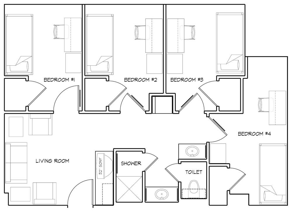
North Single Suites

Modern Suite Style Living

Newman North Single Suites house 4 residents in 4 individual bedrooms with a shared living room and bathroom. Single suite bedrooms are large and fully furnished, with plenty of room and large closets. Each spacious suite comes furnished with comfortable couches and chairs for the living room, and fully loftable and bunkable beds, lockable dressers, and large desks with a hutch and comfortable work chair. Shared suite bathrooms include a separate vanity and sink area, shower area, and toilet area for maximum convenience in a shared living environment.

 

2025-2026 full-year Pricing: $18,025 (14-meals) // $19,625 (21-meals)
 
 
NorthSingleSuites