Room Floorplans

North Double Suites

Modern Suite Style Living

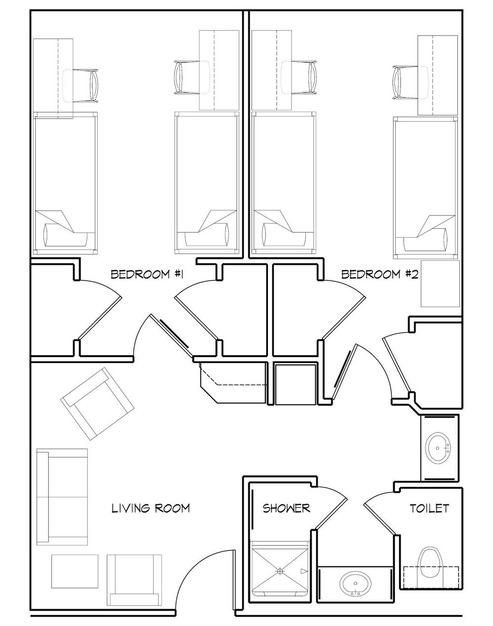
Newman North Double Suites house 4 residents in two separate shared bedrooms and include a shared living room and bathroom. Each spacious suite comes furnished with comfortable couches and chairs for the living room, and fully loftable and bunkable beds, lockable dressers, and large desks with a hutch and comfortable work chair. Bedrooms feature large closets and tons of floor space. Shared suite bathrooms include a separate vanity and sink area, shower area, and toilet area for maximum convenience in a shared living environment.

 

2025-2026 full-year Pricing: $16,650 (14-meals) // $18,250 (21-meals)
 
 
 
NorthDoubleSuite